Quelques Interrogations au sujet de la construction d'un auditorium dédié.

Aspicon
10 dB
Messages : 31
Enregistré le : 05 janv. 2025, 19:34

Re: Quelques Interrogations au sujet de la construction d'un auditorium dédié.

Message par Aspicon »

Bonjour Jean,
Encore une fois merci. J'avais vu votre post, mais j'ai dû parcourir le document un peu vite. Je vais regarder cela de plus près car en effet il doit contenir un grand nombre d'informations qui répondent à mes questions à ce stade de l'étude.
Donc lorsqu'on calcul les dimensions d'une salle dans un rapport correct, ce sont les dimensions hors tout et le volume occupé par le traitement absorbant peut être inclus dans le volume global calculé.
Il y a quand même beaucoup de paramètres à prendre en compte et mon objectif est d'éviter les trop grosses erreurs irrattrapables dès le départ du projet.
Bien cordialement.
Rémy
 

POSTREACT(ions) SUMMARY

Aspicon
10 dB
Messages : 31
Enregistré le : 05 janv. 2025, 19:34

Re: Quelques Interrogations au sujet de la construction d'un auditorium dédié.

Message par Aspicon »

Bonjour,
Je viens de relire le document, et il a quelque-chose qui m'interpelle. Les épaisseurs d'absorbant préconisés ne semble pas être du même ordre que ce dont on parle couramment. Est ce moi qui interprète mal ou bien ?
Bien cordialement.
Rémy
 

POSTREACT(ions) SUMMARY

THXRD
130 dB
Messages : 699
Enregistré le : 18 mars 2024, 11:18

Re: Quelques Interrogations au sujet de la construction d'un auditorium dédié.

Message par THXRD »

Le chiffre de 300 m3 est généralement cité par les acousticiens ..il est évidemment lié a la question des modes et F de shroeder ..
comme l’explique Jean un très fort traitement permet de de déplacer le problème vers le bas
Après ça se complique .. car le temps de reverb n’est pas l’unique critère ..concernant le ressenti

Dans mon cas , ç.est un choix lié au comparatif sur des centaines de salles réalisées ( de toutes tailles , du 12 m2 .. à qqs milliers de m3 ..pour les plus grandes )
Et également au fait que ce n’est pas juste une écoute stéréo ´ mais une salle de cinéma en immersif ( perso et à usage pro ) et où qqs copains viennent jouer en live
Un détail. «  vous dites , si j’étais plus jeune «  ..
J’ai attaqué ma maison actuelle ( et la salle ) en dessinant tout les plans , et supervisant tout dans la construction , à 70 ans … et j’ai réalisé entièrement moi même la salle ..
l’âge n’a rien à voir ..
Il y a 2 critères..principaux ..le niveau de passion .et hélas l’argent qui est le facteur limitatif …mais qui peut être
assez largement contourné si on a pratiqué dans le bâtiment ( ce qui est mon cas )
 

POSTREACT(ions) SUMMARY

Avatar du membre
Jean Fourcade
130 dB
Messages : 267
Enregistré le : 08 avr. 2024, 14:56

Re: Quelques Interrogations au sujet de la construction d'un auditorium dédié.

Message par Jean Fourcade »

Aspicon a écrit : 18 sept. 2025, 14:33 Bonjour,
Je viens de relire le document, et il a quelque-chose qui m'interpelle. Les épaisseurs d'absorbant préconisés ne semble pas être du même ordre que ce dont on parle couramment. Est ce moi qui interprète mal ou bien ?
Bien cordialement.
Rémy
Bonjour Remy,

Dans l'article de Newell les murs sont doublés par une structure de madriers de 7,5 cm avec deux plaques de plâtres de BA13 en sandwich avec une couche d'amortisseur de 5 mm (membrane EPDM de 3.5 kg/m2). Les plaques de plâtre sont tournées côté mur porteur. Entre les madriers en bois, on pose un matériau poreux de 50 mm d'épaisseur. 

Newell indique que cette structure doit être placée à moins 5 cm du mur, avec 15 cm à 20 cm sous le plafond. La valeur de 20 cm améliore l'absorption des basses.

Ce n'est pas précisé dans l'article, mais Newell ajoute souvent une laine de coton de 2 cm collée sur les BA13.

Ensuite, à cette structure, Newell pose côté intérieur un matériau à base de laine de bois / ciment type Savolit, Celenit, Hereklith de 25 à 50 mm.

Au total, on obtient une épaisseur maximale de 200+20+13+5+13+75+50 = 376 mm.

Le mur du fond a la même structure d'ossature en bois et BA13 mais avec des panneaux suspendus de  1,2 m placés à 45 degrés, soit 85 cm de profondeur.
On atteint alors une épaisseur de : 200+20+13+5+13+75+850 = 1176 mm.

Cdl
Jean
 

POSTREACT(ions) SUMMARY

Aspicon
10 dB
Messages : 31
Enregistré le : 05 janv. 2025, 19:34

Re: Quelques Interrogations au sujet de la construction d'un auditorium dédié.

Message par Aspicon »

THXRD a écrit : 18 sept. 2025, 16:43 l’âge n’a rien à voir ..
Il y a 2 critères..principaux ..le niveau de passion .et hélas l’argent qui est le facteur limitatif …mais qui peut être
assez largement contourné si on a pratiqué dans le bâtiment ( ce qui est mon cas )
Bonjour Roland,
Oui la passion c'est le moteur, l'argent et l'huile de coude le carburant.
L'augmentation des prix des matéraiux ces dernières années fait un peu peur...

Bonjour Jean,
On est donc avec des techniques un peu différentes que dans le cas d'utilisation d'amortissant épais. Est ce que ie résultat est différent lui aussi ?
Un mix des deux pourrait-il être souhaitable ?

Bien cordialement.
Rémy
 

POSTREACT(ions) SUMMARY

Avatar du membre
Jean Fourcade
130 dB
Messages : 267
Enregistré le : 08 avr. 2024, 14:56

Re: Quelques Interrogations au sujet de la construction d'un auditorium dédié.

Message par Jean Fourcade »

Oui Rémy, il existe différentes techniques de traitement : matériaux uniquement poreux, membranes type EPDM, membranes avec des panneaux de laine semi-rigides, panneaux suspendus (comme le mur du fond de Newell).

Chaque acousticien à ses préférences qu'il a validées dans plusieurs salles.

Une solution qui donne des résultats garantis est un unique matériau poreux de forte épaisseur (voir mes panneaux : Absorbeur large bande) mais qui a ses limites dans les très basses fréquences.

Les montages avec effet membranes sont, sans expérience, délicats à mettre en œuvre.
 

POSTREACT(ions) SUMMARY

THXRD
130 dB
Messages : 699
Enregistré le : 18 mars 2024, 11:18

Re: Quelques Interrogations au sujet de la construction d'un auditorium dédié.

Message par THXRD »

Comme Jean ..
Il est parfaitement possible d’user de plusieurs techniques simultanément ,

Pour le coût des matériaux , oui ça a augmenté sur les 5/7 dernières années ç.est sur et ça pèse
Mais ce n’est pas l’élément le plus important .
Pour exactement la même construction neuve , le,prix pourra varier de plus de 50 % suivant que l’on maîtrise ..bien l’ensemble des sujets ..ou pas du tout ..et ça fera un écart bien plus grand que le niveau prix des matériaux ..
 

POSTREACT(ions) SUMMARY

Aspicon
10 dB
Messages : 31
Enregistré le : 05 janv. 2025, 19:34

Re: Quelques Interrogations au sujet de la construction d'un auditorium dédié.

Message par Aspicon »

Merci Messieurs pour vos retours.
Comme dirait l'autre, tout est compliqué avant d'être simple, c'est la raison de mes questionnements dans la phase préliminaire. A 63 ans, j'ai le sentiment d'avoir moins le droit à l'erreur que si j'en avait toujours 30. En même temps j'ai toujours eu un tempérament m'incitant à la prise de risque.
Je pense que j'ai suffisamment d'infos pour travailler avec le dessinateur sur la base du projet pour la demande de permis de construire.
A suivre...

Bien cordialement.
Rémy
 

POSTREACT(ions) SUMMARY

Aspicon
10 dB
Messages : 31
Enregistré le : 05 janv. 2025, 19:34

Re: Quelques Interrogations au sujet de la construction d'un auditorium dédié.

Message par Aspicon »

Bonjour à tous,

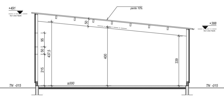
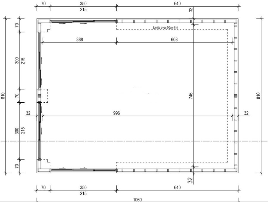
En fin d'année 2025 il a fallu précipiter la demande de permis de construite à cause d'un changement de PLU prévu début 2026.
J'ai dû arrêter mes choix en termes de dimensionnement. Ce que j'ai pu faire grace aux indications de Jean que je remercie encore.
Plan audito 1.jpg
Plan audito 2.jpg
Il y a un début à tout.
Fondations audito.jpg
Reste maintenant à attendre une évolution de la météo pour poursuivre les travaux.

Rémy.
 

POSTREACT(ions) SUMMARY

Avatar du membre
Jean Fourcade
130 dB
Messages : 267
Enregistré le : 08 avr. 2024, 14:56

Re: Quelques Interrogations au sujet de la construction d'un auditorium dédié.

Message par Jean Fourcade »

Bon départ ! Ca vous fait une jolie salle (74 m2, 288 m3).
 

POSTREACT(ions) SUMMARY

Aspicon
10 dB
Messages : 31
Enregistré le : 05 janv. 2025, 19:34

Re: Quelques Interrogations au sujet de la construction d'un auditorium dédié.

Message par Aspicon »

Merci Jean, je ne sais pas si l'on prend en compte le volume du traitement absorbant dans le volume global utile ?
 

POSTREACT(ions) SUMMARY

Avatar du membre
Dagda
Fondateur
Messages : 2103
Enregistré le : 08 mars 2024, 17:16
Localisation : Est parisien (94)
Contact :

Re: Quelques Interrogations au sujet de la construction d'un auditorium dédié.

Message par Dagda »

50cm ?
 

POSTREACT(ions) SUMMARY

https://www.youtube.com/@SoundPixelLab
La tolérance atteindra un tel niveau que les personnes intelligentes seront interdites de toutes réflexions pour ne pas offenser les imbéciles.
Avatar du membre
Indien
Fondateur
Messages : 1676
Enregistré le : 08 mars 2024, 19:42

Re: Quelques Interrogations au sujet de la construction d'un auditorium dédié.

Message par Indien »

Bonjour, joli projet !
Généralement le volume défini est net avant traitement.
 

POSTREACT(ions) SUMMARY

Aspicon
10 dB
Messages : 31
Enregistré le : 05 janv. 2025, 19:34

Re: Quelques Interrogations au sujet de la construction d'un auditorium dédié.

Message par Aspicon »

Bonjour Dylan, oui suite aux échanges avec Jean j'étais parti sur du 50cm pour les premières réflexions, mais plus pour le fond et plafond. Je continu de cogiter aux différentes solutions possibles, et je vais prendre de temps pour la mise en oeuvre, j'ai encore pas mal à apprendre côté mesures acoustiques in situ.

Merci Jean Marc, ça m'arrange , j'étais parti sur cette idée.
 

POSTREACT(ions) SUMMARY

Elgrosso
109 dB
Messages : 235
Enregistré le : 04 mai 2025, 09:24

Re: Quelques Interrogations au sujet de la construction d'un auditorium dédié.

Message par Elgrosso »

Salut Aspicon, les beaux jours revenant les travaux commencent-ils ?
 

POSTREACT(ions) SUMMARY

Karaba
10 dB
Messages : 5
Enregistré le : 20 févr. 2025, 21:08

Re: Quelques Interrogations au sujet de la construction d'un auditorium dédié.

Message par Karaba »

Undercoverbrother a écrit : 09 janv. 2025, 19:25
Bonjour,

J’ai profité de mon séjour à la montagne pour rendre visite à Clément.
Le travail accompli est extraordinaire, la qualité principale de ce type d’acoustique est l’absorption des fréquences graves.
Les Bass traps + « guides d’ondes »(panneaux absorbants inclinés) sont très très efficaces, il suffit de se déplacer dans la (petite) pièce on n’entend aucune résonance.
La mise en œuvre de ce type d’absorbeurs (Bass trap a membrane + poreux ) est pointue, d’après Clément une épaisseur importante d’absorbant poreux modifie la fréquence d’accord du Bass trap.

Hervé
 

POSTREACT(ions) SUMMARY

Karaba
10 dB
Messages : 5
Enregistré le : 20 févr. 2025, 21:08

Re: Quelques Interrogations au sujet de la construction d'un auditorium dédié.

Message par Karaba »

Image
 

POSTREACT(ions) SUMMARY

Fichiers joints
IMG_4430.jpg
Treg
10 dB
Messages : 4
Enregistré le : 30 mars 2026, 11:52

Re: Quelques Interrogations au sujet de la construction d'un auditorium dédié.

Message par Treg »

Elgrosso a écrit : 06 mars 2026, 07:52 Salut Aspicon, les beaux jours revenant les travaux commencent-ils ?
Salut David,
Mon ancien pseudo "Aspicon" est bloqué, je réponds avec ce nouveau pseudo "Treg".
Oui les beaux jours revenant les travaux ont pu reprendre gentiment.
La plateforme maçonnée est finie et j'attaque la structure bois.
Quelques photos de l'avancement à venir.

Rémy
 

POSTREACT(ions) SUMMARY

Treg
10 dB
Messages : 4
Enregistré le : 30 mars 2026, 11:52

Re: Quelques Interrogations au sujet de la construction d'un auditorium dédié.

Message par Treg »

Karaba a écrit : 19 mars 2026, 14:00
Bonjour,

J’ai profité de mon séjour à la montagne pour rendre visite à Clément.
Le travail accompli est extraordinaire, la qualité principale de ce type d’acoustique est l’absorption des fréquences graves.
Les Bass traps + « guides d’ondes »(panneaux absorbants inclinés) sont très très efficaces, il suffit de se déplacer dans la (petite) pièce on n’entend aucune résonance.
La mise en œuvre de ce type d’absorbeurs (Bass trap a membrane + poreux ) est pointue, d’après Clément une épaisseur importante d’absorbant poreux modifie la fréquence d’accord du Bass trap.

Hervé
Bonjour Hervé,
Nul doute que ce genre de visite soit intéressante et riche d'enseignement. As tu pu écouter le résultat et peux tu nous en parler ?

Rémy
 

POSTREACT(ions) SUMMARY

Karaba
10 dB
Messages : 5
Enregistré le : 20 févr. 2025, 21:08

Re: Quelques Interrogations au sujet de la construction d'un auditorium dédié.

Message par Karaba »

Bonjour Remy,

Nous avons abordé beaucoup de sujets: mix, acoustique, hps, filtrage …..
Concernant l’acoustique, je dirais que nous sommes tous habitués à vivre dans des milieux très réverbérants (habitation, loisirs….), quand tu rentres dans ce type de studio la première impression est plutôt déroutante car la pièce avec un TR très très bas et ultra absorbante malgré la présence de très gros diffuseurs au dessus et derrière le PE, la console de travail et le «in wall » en agglo.
Après ne pas oublier que c’est un studio de mixage donc un OUTIL DE TRAVAIL.
J’ai pu écouter quelques morceaux divers et variés et notamment le travail de Clément essentiellement de la musique électronique.
Une des raisons de ma visite c’était: Est-ce que ce type de montage avec enceintes affleurantes intégrées dans un mur très massif pouvait reproduire une scène sonore en profondeur ? La réponse est oui.
Mais la qualité principale de ce type de traitement est l’absorption des fréquences graves, le plus dur à réaliser.
J’ai pu écouter quelques installations avec comme points communs: une pièce dédiée, une acoustique parfaitement maîtrisée(très fort traitement acoustique), des hps utilisés dans une plage de fréquences optimales (très faible distorsion), un filtrage optimisé, c’était à chaque fois une expérience musicale .
Je ne peux qu’inciter à travailler sur l’acoustique d’une pièce, le jeu en vaut la chandelle même une petite enceinte sonnera divinement et apportera beaucoup plaisir à l’écoute.

Hervé
 

POSTREACT(ions) SUMMARY

Répondre